Présentation
Les vitrines réfrigérées arrières conceptuelles ou niches réfrigérées permettent un important gain de place. Spécialement conçues pour les produits boucherie, charcuterie, traiteur et le fromage. Ces vitrines réfrigérées arrières conceptuelles ont des dimensions variées et un grand choix de finition inox, tôle peinte ou bois.
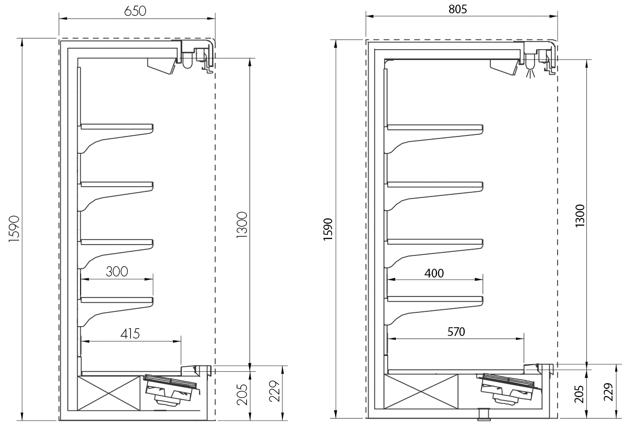
Descriptif
L. 650, 1 000, 1 250, 1 500, 1 800, 2 500 mm
- Meuble canalisable
- Meuble arrière à poser en 2 profondeurs : 650 et 805 mm.
- 2 joues INOX pleines AISI 304 ou petites vitres de côté
- Extérieur INOX AISI 304 ou RAL au choix en option
- Intérieur INOX AISI 304 ou RAL au choix en option
- Eclairage LED BLANC ou ROSE en partie supérieure
- 4 niveaux d’étagères INOX AISI P. 300 ou 400 mm. sans éclairage
- Rideau de nuit manuel de série
Caractéristiques et options
- Réfrigération ventilée
- Température de fonctionnement -1°C /+7°C – classe 3M2
- Régulation électronique intégrale avec afficheur de température
- Évaporateur traité anti-corrosion cataphorèse
- GROUPE EXTÉRIEUR avec détenteur monté soudé au R 449 A (autres détendeurs en option)
- Centrale non fournie
- Dégivrage naturel
- Évacuation des eaux de dégivrage à l’égout
